Refuerzo mesadas cocina

Aqui podes contarnos de tu proyecto subiendo fotos y videos/ o podes preguntarnos paso a paso para que te ayudemos con tu obra!!
Responder
juano80
Mensajes: 37
Registrado: 10 de Marzo de 2016 - 15:07:09
País: Argentina

Refuerzo mesadas cocina

Mensaje por juano80 »

buenas tardes,
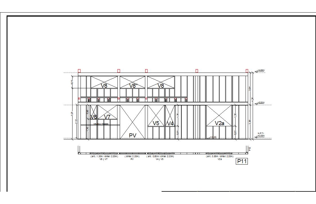
les adjunto unos planos de panelizados de mi casa, donde dice refuerzo para cocina, como se hacen y con que ???
saludos,
Adjuntos
Vista P11.jpg
Vista P7.jpg
Avatar de Usuario
DanielDEsposito
Administrador
Mensajes: 1212
Registrado: 30 de Junio de 2014 - 20:49:17
País: Argentina

Re: Refuerzo mesadas cocina

Mensaje por DanielDEsposito »

Hola de nuevo Juan.. no es necesario.. no le des bolilla.. la mesada va apoyada y pegada al bajo-mesada o sino una version economica le haces unos muritos de mamposteria o de perfileria y lo emplacas como un tabique cualquiera..
Siempre es conveniente consultar a un Profesional Matriculado (Ingeniero Civil, Arquitecto, Maestro Mayor de Obras) para no poner en riesgo la vida de personas.
juano80
Mensajes: 37
Registrado: 10 de Marzo de 2016 - 15:07:09
País: Argentina

Re: Refuerzo mesadas cocina

Mensaje por juano80 »

Gracias Daniel!!!!!!
Responder