Casas con hierro estructural (acero NO galvanizado)
Re: Casas con hierro estructural (acero NO galvanizado)
Hola que tal queda con perfil liviano?
- DanielDEsposito
- Administrador
- Mensajes: 1212
- Registrado: 30 de Junio de 2014 - 20:49:17
- País: Argentina
Re: Casas con hierro estructural (acero NO galvanizado)
como te decia arriba.. te obliga a poner poliuretano.. y placa de 15mm osb afuera..lucasm escribió:Hola que tal queda con perfil liviano?
como para evitar condesacion y luego oxidacion ya q por ser tan fino el perfil liviano se oxida mucho mas (aclaro perfil liviano llamo al de interiores, al q se corta con tijera y se usa para tabiques divisorios interiores y cielorrasos y es tb de galvanizado)
Siempre es conveniente consultar a un Profesional Matriculado (Ingeniero Civil, Arquitecto, Maestro Mayor de Obras) para no poner en riesgo la vida de personas.
Re: Casas con hierro estructural (acero NO galvanizado)
Muchas gracias y muy bueno el foro
Re: Casas con hierro estructural (acero NO galvanizado)
Hola Daniel, me parecío FANTÁSTICO el Foro, y al igual que la mayoria de los que estamos acá, estoy pensando en construir mi casa yo mismo, o con alguna ayuda no profesional, y del modo mas económico y seguro posible, y al igual que todos tengo muchas dudas que para que me las saque un arquitecto o ing.(aunque se que sería lo ideal), tendria que tener más plata de la que tengo .
Te presento más o menos mi idea que espero poder realizar cuanto antes, creeria que en este próximo 2017, toda ayuda y/o idea que me puedan brindar, tanto vos como los otros lectores serán bienvenidas, me gusta tomar cada cosa positiva que sirva para mejorar.
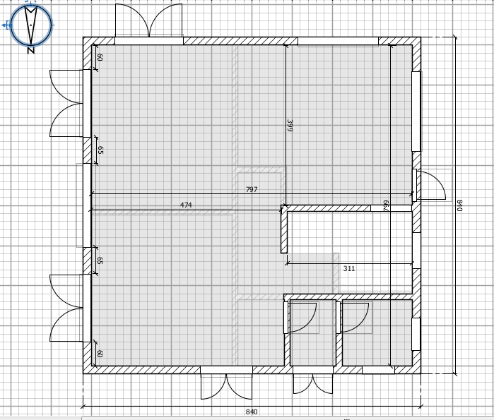
Quiero hacer una casa de 8x8 mtrs, de 2 plantas, abajo BIEN abierta, sin columnas (solo una), seria mixta (caños y perfiles livianos creo que los llaman), muchas ventanas, OSB por fuera, enlucido después, espuma de poliuretano en paredes y techo, y durlok por dentro, techo de chapa.
Pongo dos imagenes del plano que mas o menos tengo pensado, verán que en donde se unen las medidas 399cm y 474cm (arista de la pared que separa la cocina y la escalera), que seria el lugar mas céntrico al que llego con la escalera sin perder mas espacio, allí deberia ir una columna (caño) que soportaria casi todo el peso del piso superior, mediante unas vigas que irian de lado a lado de la casa, cruzandose por alli, mis preguntas son:
1° que caño deberia ser, tanto la columna como las vigas?? medidas y espesores?
2° en las paredes perimetrales, teniendo en cuenta que seria una casa de poco mas de 5 metros de altura, lo mismo, que caños me aconsejarias y a que distancia unos de otros??
Viendo mas o menos el plano, que modificaciones le harian, tanto para aprovechar mejor los espacios y/o para mejorar la fortaleza de la construcción??
Mil gracias desde ya.
PD. solo me dejan subir 3 imagenes, asique la detallada de la planta alta se las debo.
Te presento más o menos mi idea que espero poder realizar cuanto antes, creeria que en este próximo 2017, toda ayuda y/o idea que me puedan brindar, tanto vos como los otros lectores serán bienvenidas, me gusta tomar cada cosa positiva que sirva para mejorar.
Quiero hacer una casa de 8x8 mtrs, de 2 plantas, abajo BIEN abierta, sin columnas (solo una), seria mixta (caños y perfiles livianos creo que los llaman), muchas ventanas, OSB por fuera, enlucido después, espuma de poliuretano en paredes y techo, y durlok por dentro, techo de chapa.
Pongo dos imagenes del plano que mas o menos tengo pensado, verán que en donde se unen las medidas 399cm y 474cm (arista de la pared que separa la cocina y la escalera), que seria el lugar mas céntrico al que llego con la escalera sin perder mas espacio, allí deberia ir una columna (caño) que soportaria casi todo el peso del piso superior, mediante unas vigas que irian de lado a lado de la casa, cruzandose por alli, mis preguntas son:
1° que caño deberia ser, tanto la columna como las vigas?? medidas y espesores?
2° en las paredes perimetrales, teniendo en cuenta que seria una casa de poco mas de 5 metros de altura, lo mismo, que caños me aconsejarias y a que distancia unos de otros??
Viendo mas o menos el plano, que modificaciones le harian, tanto para aprovechar mejor los espacios y/o para mejorar la fortaleza de la construcción??
Mil gracias desde ya.
PD. solo me dejan subir 3 imagenes, asique la detallada de la planta alta se las debo.
- DanielDEsposito
- Administrador
- Mensajes: 1212
- Registrado: 30 de Junio de 2014 - 20:49:17
- País: Argentina
Re: Casas con hierro estructural (acero NO galvanizado)
Estimado,Gentyc escribió:Hola Daniel, me parecío FANTÁSTICO el Foro, y al igual que la mayoria de los que estamos acá, estoy pensando en construir mi casa yo mismo, o con alguna ayuda no profesional, y del modo mas económico y seguro posible, y al igual que todos tengo muchas dudas que para que me las saque un arquitecto o ing.(aunque se que sería lo ideal), tendria que tener más plata de la que tengo .
Te presento más o menos mi idea que espero poder realizar cuanto antes, creeria que en este próximo 2017, toda ayuda y/o idea que me puedan brindar, tanto vos como los otros lectores serán bienvenidas, me gusta tomar cada cosa positiva que sirva para mejorar.
Quiero hacer una casa de 8x8 mtrs, de 2 plantas, abajo BIEN abierta, sin columnas (solo una), seria mixta (caños y perfiles livianos creo que los llaman), muchas ventanas, OSB por fuera, enlucido después, espuma de poliuretano en paredes y techo, y durlok por dentro, techo de chapa.
Pongo dos imagenes del plano que mas o menos tengo pensado, verán que en donde se unen las medidas 399cm y 474cm (arista de la pared que separa la cocina y la escalera), que seria el lugar mas céntrico al que llego con la escalera sin perder mas espacio, allí deberia ir una columna (caño) que soportaria casi todo el peso del piso superior, mediante unas vigas que irian de lado a lado de la casa, cruzandose por alli, mis preguntas son:
1° que caño deberia ser, tanto la columna como las vigas?? medidas y espesores?
2° en las paredes perimetrales, teniendo en cuenta que seria una casa de poco mas de 5 metros de altura, lo mismo, que caños me aconsejarias y a que distancia unos de otros??
Viendo mas o menos el plano, que modificaciones le harian, tanto para aprovechar mejor los espacios y/o para mejorar la fortaleza de la construcción??
Mil gracias desde ya.
PD. solo me dejan subir 3 imagenes, asique la detallada de la planta alta se las debo.
gracias y muy bienvenido!!
Tu pregunta es BIEN BIEN BIEN para ingenieros sobre todo porque vas a usar un sistema que en 2 plantas no domino osea PERFIL ESTRUCTURAL O RECTANGULAR DE ACERO (no galvanizado).
Si tuviera que hacerlo me asesoraria con un herrero que haga tinglados (como minimo) o un ing o arq como vos mismo mencionabas.
Por otro lado es una estructura con luces relativamente pequeñas por lo tanto no es algo arriesgado pero si debes ser cuidadoso!!
La distribucion me parece muy buena, practica y relativamente sencillo de realizar como te digo..
Lamento no poder darte mayores especificiaciones, realmente no es mi campo.. tene en cuenta que en las fotos primeras del post toda la estructura (como mencione por ahi) ya me la dieron hecha.. Pero no te asustes, solo trata de hablar con alguien mas idoneo en eso..
Espero que me comentes cuando puedas lo que vas resolviendo, en temas enchapados y revestimientos interiores y exteriores, termicidad y otras cuestiones mas adelante quiza te puedo dar mejor ayuda saludos
Siempre es conveniente consultar a un Profesional Matriculado (Ingeniero Civil, Arquitecto, Maestro Mayor de Obras) para no poner en riesgo la vida de personas.
-
- Mensajes: 1
- Registrado: 17 de Enero de 2017 - 21:32:05
- País: Argentina
Re: Casas con hierro estructural (acero NO galvanizado)
Daniel que bueno que dedicaste tu tiempo a esta tecnica que me interesa por el bajo costo y la comodidad, voy a tratar de conseguir algun tipo de calculo para aquellos que quieran desarrollar los dos pisos con seguridad en el calculo, me gustaria a parte de la buena descripcion de como realizar el mallado de diam.6mm doble separado 7 cm aprox en una platea de 15 o 17 cm y en los bordes unos estribos de 15 x 10 con hormigon H21($1900 el mts cubico) en una platea de 5mts (frente) 10mts esto ronda los 50mts cuadrados esto ronda en materiales los $30000 argentinos en enero de 2017
Ahora la tecnica de ricardo (genio)esto para un solo piso, me intereso la de hacer tipo nave industrial, columna de acero perfil C 3mts total asi espesor 5 mm [ enterrado 1 mts en concreto de 80cm x 80cm x 1,2mts de profundidad y cada 3mts una columna son 10 columnas ($15000) hormigon y ($4000) los perfiles ya que estamos sobrados de soporte, unis el techo reemplazando encadenado 4cmx8cm esp 2mm con estructural y ya estas cerrando , ahora calculamos el piso: 11cm de alto contrapiso comun $6000 total : $25000
Ahora la tecnica de ricardo (genio)esto para un solo piso, me intereso la de hacer tipo nave industrial, columna de acero perfil C 3mts total asi espesor 5 mm [ enterrado 1 mts en concreto de 80cm x 80cm x 1,2mts de profundidad y cada 3mts una columna son 10 columnas ($15000) hormigon y ($4000) los perfiles ya que estamos sobrados de soporte, unis el techo reemplazando encadenado 4cmx8cm esp 2mm con estructural y ya estas cerrando , ahora calculamos el piso: 11cm de alto contrapiso comun $6000 total : $25000
-
- Mensajes: 1
- Registrado: 22 de Enero de 2017 - 22:28:43
- País: Colombia
Re: Casas con hierro estructural (acero NO galvanizado)
Necesito ayuda para un trabajo igual o parecido
Re: Casas con hierro estructural (acero NO galvanizado)
Daniel, todo bien? Veo que esta casa ya tiene un par de años de hecha... te has enterado de algun problema que haya tenido o algo asi? Has usado esta tecnica "combinada" en algun otro proyecto? Gracias, un saludo
Re: Casas con hierro estructural (acero NO galvanizado)
Hola Ricardo quisiera saber si continúo su casa, me interesa mucho su proyecto, especialmente por lis pilotes de tubing para sostener la plataforma elevada. Saludos
-
- Mensajes: 1
- Registrado: 18 de Julio de 2017 - 07:29:39
- País: Argentina
- Ubicación: Correa - Santa fe
Re: Casas con hierro estructural (acero NO galvanizado)
Buenos días Daniel, primeramente quería felicitarte por tus aportes detallados, luego una consulta sobre las fotos que publicaste, se podría armar el esqueleto base de las paredes en steel frame y luego las cabriadas de tubo estructural y su correspondiente marco (que funcionaria como viga a repartir la carga entre los montantes )colocado encima de los esqueletos de las paredes en steel frame? pregunto por la razón de que en el techo uno podría aumentar el paso entre cabriadas y colocarlas cada 1 metro para el apoyo y solape de las chapas, usar el estructural como cabio, y el tema seria luego solucionar el cerramiento interior con su correspondiente aislacion termica, tal vez investigando un poco se podría abaratar la cantidad de materiales ya que al mantener el paso de los montantes en la base, uno dispone el mismo paso en las cabriadas y esto incrementa el costo, cual seria tu opinión de un sistema "híbrido" como el que has presentado?