Proyecto en el aire...
-
- Mensajes: 9
- Registrado: 27 de Marzo de 2016 - 01:00:41
- País: Argentina
Proyecto en el aire...
Hola que tal, les cuento que tengo un proyecto para hacer un local, por supuesto tengo muchas dudas que me gustaría ir eliminándolas....
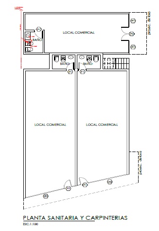
Es un local de 4 de frente por 9 de largo y 3.5 de alto a la izquierda y 3.1 a la derecha.
Adjunto dibujo para que se entienda...
Bueno empecemos por la estructura.... me habian propuesto poner 6 columnas hechas con dos PGC y 2 PGU enterradas en la platea unidas a la malla antes de hormigonar. Me parece que no hace falta. Si lo hago en paneles no hace falta columnas de estas...
Bueno ahora se me ocurre hacer los paneles con distancia entre montantes de 0.5 m y con los cabios de pgc 100 tambien a 0.5 adjunto dibujo tambien? Esto es factible o hay que poner pgc de 150?
Los paneles de que largo me conviene hacerlos, de 3m, de 4.5m o de 9m ? Perdon si pregunto una burruda... jeje
Este local lo quiero hacer atraz de otros locales pegado a los baños, tambien adjunto foto.
Y foto real, donde iria en el ubicacion de la mediasombra la coloco en otro mensaje...
Es un local de 4 de frente por 9 de largo y 3.5 de alto a la izquierda y 3.1 a la derecha.
Adjunto dibujo para que se entienda...
Bueno empecemos por la estructura.... me habian propuesto poner 6 columnas hechas con dos PGC y 2 PGU enterradas en la platea unidas a la malla antes de hormigonar. Me parece que no hace falta. Si lo hago en paneles no hace falta columnas de estas...
Bueno ahora se me ocurre hacer los paneles con distancia entre montantes de 0.5 m y con los cabios de pgc 100 tambien a 0.5 adjunto dibujo tambien? Esto es factible o hay que poner pgc de 150?
Los paneles de que largo me conviene hacerlos, de 3m, de 4.5m o de 9m ? Perdon si pregunto una burruda... jeje
Este local lo quiero hacer atraz de otros locales pegado a los baños, tambien adjunto foto.
Y foto real, donde iria en el ubicacion de la mediasombra la coloco en otro mensaje...
-
- Mensajes: 9
- Registrado: 27 de Marzo de 2016 - 01:00:41
- País: Argentina
Re: Proyecto en el aire...
Adjunto la foto real, mañana sigo con las dudas que tengo.... gracias
- DanielDEsposito
- Administrador
- Mensajes: 1212
- Registrado: 30 de Junio de 2014 - 20:49:17
- País: Argentina
Re: Proyecto en el aire...
Hola Ale, gracias por traer aca tus consultas..
Mira, no se que experiencia tenes en esto pero esta muy bien lo que decis.. Osea que los paneles no deben ir debajo de la platea!!!!!
no se quien te dijo eso..
Por lo general se paneliza entre un minimo de 40cm y un maximo de 60cm pasando por 48cm que es un multiplo de la placa de durlock que mide 2,40mts pero muchas veces se toma como referencia la placa OSB que es de 2,44mts y entonces cambia la modulacion a 40,6cm o 48,8cm.. etc se entiende?
Dado que la luz de tu techo es de 4mts yo me quedaria tranquilo poniendo perfileria cada 60cm y en el techo le pondria cabios de 150mm cada 60cm tambien..
Espero que sirva la informacion saludos
Mira, no se que experiencia tenes en esto pero esta muy bien lo que decis.. Osea que los paneles no deben ir debajo de la platea!!!!!

Por lo general se paneliza entre un minimo de 40cm y un maximo de 60cm pasando por 48cm que es un multiplo de la placa de durlock que mide 2,40mts pero muchas veces se toma como referencia la placa OSB que es de 2,44mts y entonces cambia la modulacion a 40,6cm o 48,8cm.. etc se entiende?
Dado que la luz de tu techo es de 4mts yo me quedaria tranquilo poniendo perfileria cada 60cm y en el techo le pondria cabios de 150mm cada 60cm tambien..
Espero que sirva la informacion saludos
Siempre es conveniente consultar a un Profesional Matriculado (Ingeniero Civil, Arquitecto, Maestro Mayor de Obras) para no poner en riesgo la vida de personas.
-
- Mensajes: 9
- Registrado: 27 de Marzo de 2016 - 01:00:41
- País: Argentina
Re: Proyecto en el aire...
Muchas gracias por tu respuesta
- DanielDEsposito
- Administrador
- Mensajes: 1212
- Registrado: 30 de Junio de 2014 - 20:49:17
- País: Argentina
Re: Proyecto en el aire...
Ahh respecto a la pregunta del largo de los paneles te cuento que en realidad hay 2 formas de hacer las estructuras de steel framing..
por paneles (en ese caso podes hacerlas hasta 6mts en tu caso) (depende del peso, el transporte y entre cuantos la levantes)
la otra modalidad es montar las 4 columnas de las 4 esquinas que tenes.. tirar tanzas y armar como se arman las estructuras livianas (de los tabiques interiores con placas de yeso) me refiero a que vas poniendo cada 40 o 60 o lo que elijas los pgc verticales y a diferencia del metodo anterior no tenes el desperdicio de dobles perfiles que te quedarian en las uniones de paneles ¿se entiende?
En esta ultima modalidad se coloca toda la solera inferior (pgu) luego se monta ("para") la columna armada (consta de 4 perfiles) y luego se "flecha" (fija diagonalmente) con trozos de pgc de entre 2 y 3 mts desde una altura de unos 2mts hasta algun punto en la solera de piso.. se entiende?
Entonces con las 4 columas paradas se tiran hilos en la parte superior,y se van colocando tramos de pgu (solera superior) y montantes que la van sosteniendo
por paneles (en ese caso podes hacerlas hasta 6mts en tu caso) (depende del peso, el transporte y entre cuantos la levantes)
la otra modalidad es montar las 4 columnas de las 4 esquinas que tenes.. tirar tanzas y armar como se arman las estructuras livianas (de los tabiques interiores con placas de yeso) me refiero a que vas poniendo cada 40 o 60 o lo que elijas los pgc verticales y a diferencia del metodo anterior no tenes el desperdicio de dobles perfiles que te quedarian en las uniones de paneles ¿se entiende?
En esta ultima modalidad se coloca toda la solera inferior (pgu) luego se monta ("para") la columna armada (consta de 4 perfiles) y luego se "flecha" (fija diagonalmente) con trozos de pgc de entre 2 y 3 mts desde una altura de unos 2mts hasta algun punto en la solera de piso.. se entiende?
Entonces con las 4 columas paradas se tiran hilos en la parte superior,y se van colocando tramos de pgu (solera superior) y montantes que la van sosteniendo
Siempre es conveniente consultar a un Profesional Matriculado (Ingeniero Civil, Arquitecto, Maestro Mayor de Obras) para no poner en riesgo la vida de personas.
-
- Mensajes: 9
- Registrado: 27 de Marzo de 2016 - 01:00:41
- País: Argentina
Re: Proyecto en el aire...
Muchas gracias muy buena data
-
- Mensajes: 9
- Registrado: 27 de Marzo de 2016 - 01:00:41
- País: Argentina
Re: Proyecto en el aire...
Daniel una consulta.... si al frente del local quiero hacerle un alero de 1.5m como tienen casi todos los locales, como tendría que hacer según el dibujo de la perspectiva....
- DanielDEsposito
- Administrador
- Mensajes: 1212
- Registrado: 30 de Junio de 2014 - 20:49:17
- País: Argentina
Re: Proyecto en el aire...
Hola, mira, hasta 60 u 80cm me animo a hacer aleros que salgan desde adentro de la perfileria osea espalda con espalda pero obviamente tenes los perfiles verticales (que van de espalda) con los perfiles horizontales del alero. Y en esa union le pones unos 9 tornillos ¿se entiende?aleadamini escribió:Daniel una consulta.... si al frente del local quiero hacerle un alero de 1.5m como tienen casi todos los locales, como tendría que hacer según el dibujo de la perspectiva....
En el caso de un alero mas ancho como el que mencionas, harias lo mismo pero tendrias que agregarle algunos tensores de acero o de perfil rigido

Siempre es conveniente consultar a un Profesional Matriculado (Ingeniero Civil, Arquitecto, Maestro Mayor de Obras) para no poner en riesgo la vida de personas.
-
- Mensajes: 9
- Registrado: 27 de Marzo de 2016 - 01:00:41
- País: Argentina
Re: Proyecto en el aire...
Se entiende perfecto.... muchas gracias devuelta
-
- Mensajes: 14
- Registrado: 10 de Septiembre de 2016 - 18:26:46
- País: Argentina
Re: Proyecto en el aire...
Hola Daniel, hola a todos. Con respecto al alero, conviene hacerlo antes de emplacar para unir los pgc espalda con espalda o conviene emplacar todo para darle mas rigidez al panel y luego sacar el alero con el osb ya puesto? No se mi me explico, pero no se me ocurre como hacer un alero despues de emplacar, donde podrían ir agarrados los perfiles.
Mil gracias
Mil gracias